En limite de l’Emprise de l’Etablissement Public de la Défense, sur la commune de Nanterre, est installée la société NATALYS ; des bureaux – situés dans un petit château industriel inscrit à l’inventaire des Monuments Historiques – et des entrepôts.
Après l’incendie de ces derniers, il faut les reconstruire, vite, en étendant leur superficie. 9 400 m² seront construits en neuf mois. L’avis très favorable de la DRAC imposait néanmoins une vêture de briques de parement, contrainte supplémentaire dans un planning étroit.
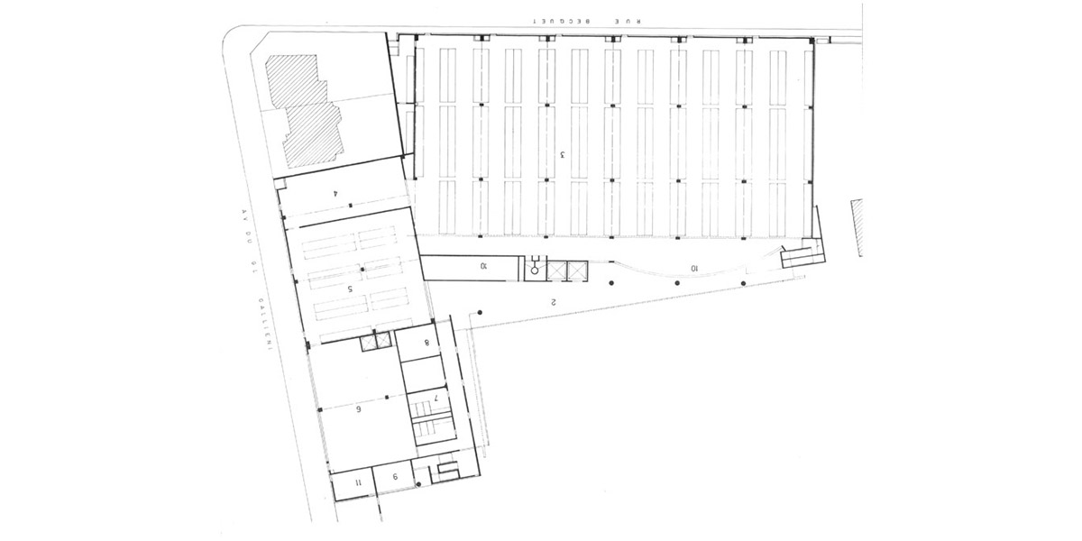
Composées sur l’idée d’une opposition des faces, les façades extérieures adoptent une modénature de revêtement en référence directe au bâtiment de bureaux ; Les façades intérieures recomposent la géométrie de la cour de service en référence aux existants et remettent en situation l’ancien pavillon des gardiens. L’horizontale des châssis et le quai de déchargement surlignent le dispositif. Le corps principal du bâtiment est composé autour d’un volume d’entrepôts de 7,5 mètres de hauteur. La trame porteuse (10,80 x 11,00 m) est adaptée aux dimensions des éléments de stockage.
Les bureaux induits, les vestiaires et le restaurant d’entreprise, installés en balcon, sont compris dans le double volume.